Schöne Kapitalanlage mit 3 Zimmern im Herzen der Südstadt!
30173 Hannover, Etagenwohnung zum Kauf
Kontaktdaten
-
NameHerr Timur Esmursiev
-
PositionSpezialist für Vermietung & Verkauf
-
FirmaWeber & Surmann Immobilien
-
AnschriftWaldstraße 1
30163 Hannover -
E-Mail
-
Telefon
verkauft
Dieses Objekt ist zur Zeit leider nicht verfügbar.
Objektdaten
-
Objekt-ID2024-61
-
ObjekttypenEtagenwohnung, Wohnung
-
Adresse30173 Hannover
Niedersachsen -
Etage2
-
Etagen im Haus4
-
Wohnfläche ca.64 m²
-
Zimmer3
-
Schlafzimmer1
-
Badezimmer1
-
Balkone1
-
HeizungsartEtagenheizung
-
Wesentlicher EnergieträgerGas
-
Baujahr1954
-
Zustandgepflegt
-
Statusvermietet
-
Käuferprovision3,57 % (inkl. MwSt.)
Der Käufer zahlt an den Makler eine Provision in Höhe von 3,57 % inkl. 19 % MwSt. des notariell beurkundeten Kaufpreises. Die Provision ist verdient und fällig mit Abschluss des notariellen Kaufvertrages. -
Hausgeld207,00 EUR
-
Kaltmiete610,00 EUR
-
Kaufpreis195.000 EUR
-
Nebenkosten125,00 EUR
-
Warmmiete735,00 EUR
Ausstattung / Merkmale
- ✓ Abstellraum
- ✓ Balkon
- ✓ Dusche
- ✓ Fliesenboden
- ✓ Keller
- ✓ Laminatboden
Energieausweis
-
EnergieausweistypBedarfsausweis
-
Ausstellungsdatum18.11.2022
-
Gültig bis17.11.2032
-
GebäudeartWohngebäude
-
Baujahr1954
-
PrimärenergieträgerGas
-
Endenergiebedarf178,10 kWh/(m²·a)
-
EnergieeffizienzklasseF
Objektbeschreibung
Beschreibung
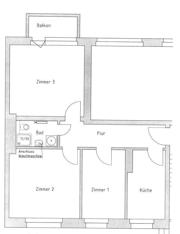
Zum Verkauf steht eine gut geschnittene Etagenwohnung mit 3 Zimmern in einem gepflegten, Mehrfamilienhaus mit 12 Wohneinheiten im typischen Südstadt-Klinkerbau Die Wohnung befindet sich im 2. Obergeschoss eines 4-stöckigen Hauses und bietet Ihnen auf einer großzügigen Wohnfläche von ca. 64 m² ausreichend Platz für individuelles Wohnen.
Die Wohnung verfügt über ein gemütliches Schlafzimmer sowie zwei weitere Zimmer, die vielseitig genutzt werden können – sei es als Arbeitszimmer, Gästezimmer oder Kinderzimmer. Das Duschbad ist funktional gestaltet.
Zusätzlich gehörten 1 Kellerraum und ein Bodenabstellraum zur Wohnung, die Ihnen weiteren Stauraum bietet. Die Immobilie ist derzeit vermietet, was sie für Kapitalanleger zu einer interessanten Investitionsmöglichkeit macht.
Die mtl. Kaltmiete beträgt ab dem 01.01.2026 nach erfolgter Mieterhöhung 610,00 €.
Die Mieterin hat der Mieterhöhung bereits zugestimmt.
Ausstattung
- gute Raumaufteilung
- Duschbad mit Waschmaschinenanschluss
- sonniger Balkon
- helle Wohnräume
- neue Fenster in 2022 inkl. Balkonelement
- Gasetagenheizung von Brötje, Bj. 2008
- Gegensprechanlage
- 1 Keller- und ein Bodenabstellraum
Sonstiges
Grundsteuer ab 01.01.2025 beträgt 279,84 € jährlich.
Alle weiteren Informationen auf Anfrage.
Besuchen Sie uns unter http://www.immo-ws.de
Es handelt sich um circa m²- Angaben.
Irrtümer und Zwischenverkauf vorbehalten.
GELDWÄSCHE: Als Immobilienmaklerunternehmen sind wir nach § 2 Abs. 1 Nr. 14 und § 11 Abs. 1, 2 Geldwäschegesetz (GwG) dazu verpflichtet, bei der Begründung einer Geschäftsbeziehung die Identität des Vertragspartners festzustellen und zu überprüfen, bzw. sobald ein ernsthaftes Interesse an der Durchführung des Immobilienkaufvertrages besteht. Hierzu ist es erforderlich, dass wir nach § 11 Abs. 4 GwG die relevanten Daten Ihres Personalausweises festhalten (wenn Sie als natürliche Person handeln) – beispielsweise mittels einer Kopie. Bei einer juristischen Person benötigen wir eine Kopie des Handelsregisterauszugs, aus welchem der wirtschaftlich Berechtigte hervorgeht. Das Geldwäschegesetz sieht vor, dass der Makler die Kopien bzw. Unterlagen fünf Jahre aufbewahren muss. Als unser Vertragspartner haben Sie auch eine Mitwirkungspflicht nach § 11 Abs. 6 GwG.
HAFTUNG: Wir weisen darauf hin, dass die von uns weitergegebenen Objektinformationen, Unterlagen, Pläne etc. vom Verkäufer bzw. Vermieter stammen. Eine Haftung für die Richtigkeit oder Vollständigkeit der Angaben übernehmen wir daher nicht. Es obliegt daher unseren Kunden, die darin enthaltenen Objektinformationen und Angaben auf ihre Richtigkeit hin zu überprüfen. Alle Immobilienangebote sind freibleibend und vorbehaltlich Irrtümer, Zwischenverkauf- und Vermietung oder sonstiger Zwischenverwertung.
Lage
Die angebotene Immobilie befindet sich in einer der begehrtesten Wohnlagen von Hannover. Die zentrale Lage ermöglicht Ihnen eine hervorragende Anbindung an den öffentlichen Nahverkehr, mit mehreren Straßenbahn- und Buslinien in unmittelbarer Nähe. Einkaufsmöglichkeiten des täglichen Bedarfs, wie Supermärkte, Bäckereien und Fachgeschäfte, sind fußläufig erreichbar und bieten Ihnen eine hohe Lebensqualität.
In der Umgebung finden Sie zahlreiche Freizeitmöglichkeiten, darunter Parks, Sporteinrichtungen und kulturelle Angebote. Die nahegelegene Innenstadt von Hannover lädt mit ihren vielfältigen Restaurants, Cafés und Boutiquen zum Verweilen ein.
Familien profitieren von der Nähe zu verschiedenen Schulen und Kindergärten, die eine gute Bildungsversorgung garantieren. Auch die Anbindung an die Autobahn ist optimal, sodass Sie schnell in die umliegenden Städte und die schöne Natur der Region gelangen.
Überzeugen Sie sich selbst von der attraktiven Lage dieser Immobilie und vereinbaren Sie einen Besichtigungstermin!
Die ungefähre Position der Immobilie auf Google Maps ansehen (Link auf externe Website)







